?!DOCTYPE html PUBLIC "-//W3C//DTD XHTML 1.0 Transitional//EN" "http://www.w3.org/TR/xhtml1/DTD/xhtml1-transitional.dtd">
名称QVSSJAFG单法C力接?
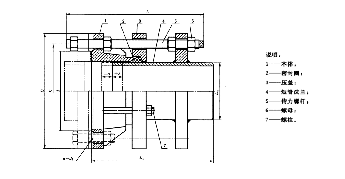
标签Q?/strong>VSSJAFG型单法兰传力接头

单法C力接头性能特点Q?/strong>
传力接头是܇、阀门等讑֤与管道连接的C品,通过全螺栓把它们q接hQ其成Z个整体,q有一定的位移量,q样可以在安装l修ӞҎ现场安装寸q行调整Q在工作Ӟ可以把u向推力传q至整个道。这样不仅提高工作效率,而切Ҏ܇、阀们等讑֤起到一定保护作用?nbsp;
如需最新数据请联系在线客服
沛_良众业有限公司 手机P18638277136 Q?371-64018718 传真Q?nbsp;0371-64018718 邮箱Q?50165323@qq.com 地址Qm义市西村镇西?nbsp; |址Q?a href="http://www.dayangmei.cn" target="_self">http://www.dayangmei.cn